RENCANA KERJA DAN SYARAT UNTUK ITEM PEKERJAAN PEMBANGUNAN GEDUNG BETINGKAT
RENCANA KERJA DAN SYARAT UNTUK ITEM PEKERJAAN PEMBANGUNAN GEDUNG BETINGKAT
PERSIAPAN PERENCANAAN BANGUNAN GEDUNG
Hal-hal yang wajib dipersiapkan oleh penyedia jasa (konsultan perencana) dalam melaksanakan kegiatan perencanaan BANGUNAN GEDUNG
KAK & DOK FAS
• Pemahaman terhadap muatan KAK
TANGGAPAN KAK
• Metodologi Pelaksanaan
• Mobilisasi surveyor dan tenaga ahli
DATA INFORMASI
• Benchmarking, diskusi dengan pengguna jasa, survei lokasi dan lingkungan, survei pasar, survei infrastruktur, sosial, dampak dan permasalahan yang timbul : sondir dan boring, Pengukuran lahan/tapak
ADMINISTRASI
• Menyelesaikan administrasi setelah lelang: Surat Perjanjian Pekerjaan Perencanaan (SPPP), Surat Perintah Mulai Kerja (SPMK)
PROGRAM KERJA
• Program Kerja : Rencana dan Jadwal Kerja, Lingkup Pekerjaan
PRA RENCANA BANGUNAN GEDUNG
KETERANGAN RENCANA KOTA
• Menurut PP 36/2005, definisi Keterangan Rencana Kabupaten/Kota adalah informasi tentang persyaratan tata bangunan dan lingkungan yang diberlakukan oleh Pemerintah Kabupaten/Kota pada lokasi tertentu (Pasal 1 angka 5 PP 36/2005).
• Berdasarkan PP 36/2005, SKRK diberikan oleh pemerintah daerah berdasarkan gambar peta lokasi tempat bangunan gedung yang akan didirikan oleh pemilik (Pasal 14 ayat (3) PP 36/2005). Dalam praktiknya, pemerintah daerah setempat akan mendelegasikan kewenangan tersebut kepada dinas terkait untuk memberikan SKRK.
Berdasarkan Pasal 14 ayat (4) PP 36/2005,
dijelaskan bahwa SKRK berisi:
• fungsi bangunan gedung yang dapat dibangun pada lokasi bersangkutan;
• ketinggian maksimum bangunan gedung yang diizinkan;
• jumlah lantai/lapis bangunan gedung di bawah permukaan tanah dan KTB yang diizinkan;
• garis sempadan dan jarak bebas minimum bangunan gedung yang diizinkan;
• KDB maksimum yang diizinkan;
• KLB maksimum yang diizinkan;
• KDH minimum yang diwajibkan;
• KTB maksimum yang diizinkan; dan
• ijaringan utilitas kota.
RENCANA TATA BANGUNAN DAN LINGKUNGAN
• RTBL merupakan pengaturan persyaratan tata bangunan gedung sebagai tindak lanjut RTRW kabupaten/kota dan/atau RDTR Kabupaten/Kota, digunakan dalam pengendalian pemanfaatan ruang suatu kawasan dan sebagai panduan rancangan kawasan untuk mewujudkan kesatuan karakter serta kualitas bangunan gedung dan lingkungan yang berkelanjutan.
• RTBL memuat materi pokok ketentuan program bangunan gedung dan lingkungan, rencana umum dan panduan rancangan, rencana investasi, ketentuan pengendalian rencana, dan pedoman pengendalian pelaksanaan.
• Penyusunan RTBL didasarkan pada pola penataan bangunan gedung dan lingkungan yang meliputi perbaikan, pengembangan kembali, pembangunan baru, dan/atau pelestarian untuk:
o Kawasan terbangun;
o Kawasan yang dilindungi dan dilestarikan;
o Kawasan baru yang potensial berkembang; dan/atau
o Kawasan yang bersifat campuran.
PERKIRAAN BIAYA
• Pada tahap ini perkiraan biaya sudah termasuk angka biaya rinci, karena perhitungan biaya belum masuk ke bagian detail
• Perhitungan biaya ini sudah lebh fiks daripada perhitungan sebelumnya karena dimensi ruang dan bangunan serta detail yang sudah terlihat.
• Perhitungan sudah dilakukan per pekerjaan:
– Pekerjaan Persiapan terdiri dari: pembersihan lahan, cut and fill, pagar pengaman, mobilisasi dan demobilisasi.
– Pekerjaan Sipil, terdiri dari pondasi, sloof, kolom, dinding dan rangka penutup atap.
– Pekerjaan finishing, terdiri dari lantai, dinding, plafond dan penutup atap.
– Pekerjaan Instalasi Mekanikal, Elektrikal dan Plumbing, terdiri dari jaringan listrik, telepon, tata suara, tata udara, air bersih dan air kotor.
– Pekerjan luar/halaman, terdiri dari perkerasan jalan, jalan setapak, pagar halaman dan taman.
• Perhitungan biaya pada tahap ini masih diperlukan perhitungan biaya yang terinci, misal talang, detil ornamen, detil lainnya yang membutuhkan biaya tersendiri.
LAPORAN PERENCANAAN
• Dalam laporan perencanaan yang dilakukan tahap ini juga memuat antara lain :
– Deskripsi dari maksud, tujuan dan sasaran dilaksanakannya penyelenggaraan kegiatan pembangunan gedung.
– Lingkup kegiatan, perumusan identifikasi masalah dan metodologi wajib tercantum di dalam laporan perencanaan
– Proses pemecahan masalah yang dikembangkan dalam pra rencana tersebut yang merupakan hasil keputusan antara tim perancangan dengan pemilik/pengguna bangunan gedung tersebut.
– Dokumentasi dari sketsa gagasan
– Dokumentasi pra rencana yang disusun.
PENYIAPAN IZIN MENDIRIKAN BANGUNAN GEDUNG
• Pada tahap pra rencana bangunan gedung, penyiapan untuk pengurusan IMB telah dilakukan.
• Tujuannya adalah agar dalam persiapan IMB dapat dilakukan sejak dini sehingga tidak menimbulkan permasalahan berikutnya.
• Persiapan sebagai alat untuk pemantauan terhada pemenuhan persyaratan yang telah diatur dalam peraturan dengan bangunan.
• Persiapan lainnya adalah persiapan tentang administrasi dan teknis untuk memperlihatkan bahwa bangunan yang direncanakan telah mengikuti persyaratan yang berlaku.
PENGEMBANGAN RENCANA BANGUNAN GEDUNG
RENCANA ARSITEKTUR
- Gambar rencana arsitektur meliputi :
– Situasi, skala 1:200
– Rencana Tapak, skala 1:200
– Denah, tampak potongan, skala 1:100
– Rencana Pintu dan Jendela, skala 1:100, 1:50
– Rencana Lantai, skala 1:100, 1:50
– Rencana Plafon
· GAMBAR SITUASI
• Gambar SITUASI adalah tampak atas bangunang meliputi
– Bentuk atap
– Letak bangunan dalam tapak
– Gambar letak pohon dan perkerasan
– Gambar arah utara
DENAH
• Gambar DENAH dalah gambar Potongan 1 m dari lantai.
• meliputi :
– Nama ruang
– Ketinggian lantai
– Ukuran ruang
– Garis atap
– Informasi bukaan pintu dan jendela
– Gambar tangga
– Letak kolom utama
TAMPAK
• Gambar TAMPAK adalah gambar wajah bangunan dari muka, samping dan belakang.
• meliputi :
– Memperlihatkan letak jendela, pintu, dekorasi, atap dan dinding,
– Merupakan bagian yang tak terpisahkan dari potongan.
POTONGAN
• Gambar POTONGAN adalah potongan melintang bangunan yang memperlihatkan letak dan ukuran elemen bangunannya.
• meliputi :
– Tinggi lantai, plafon, atap, pondasi, jendela
– Potongan pondasi, dinding, balok, plat struktur atap dan penutup atap
– Jarak antar kolom, pondasi.
– Antara potongan dan tampak adalah tidak terpisahkan
RENCANA STRUKTUR
• Gambar rencana Struktur :
– Rencana Atap, skala 1:100
– Rencana Balok- Kolom, skala 1:100
– Rencana Pondasi, skala 1:100
GAMBAR RENCANA STRUKTUR ATAP
• Gambar Rencana Atap : Gambar yang memperlihatkan tampak atas yang memperlihatkan konstruksi atap (kayu, baja dan aluminium).
• Bentang : bentang panjang, dan bentang pendek
• Meliputi :
– Gambar sistem dan letak konstruksi atap (kuda-kuda dan penutup atap)
– Gambar bahan bangunan yang digunakan.
– Gambar konstruksi atap merupakan gambar rinci dari potongan
GAMBAR RENCANA BALOK, KOLOM DAN PLAT
• Gambar Rencana Balok dan Kolom : Gambar denah kolom dan balok yang memperlihatkan letak, jarak dan dimensi.
• Sistem : Rangka, Bidang atau campuran
• Bahan : baja, Beton dan Kayu atau Bambu
• Meliputi :
– rencana balok dan kolom
– Potongan plat
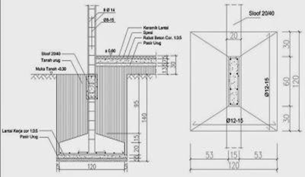
GAMBAR RENCANA PONDASI BATU KALI DAN FOOTPLATE
• Gambar RENCANA PONDASI: Gambar denah dan potongan pondasi yang digunakan.
• Jenis : Footplate, Pondasi Sumuran, Pondasi tiang Pancang, Pondasi
• Meliputi :
– Bentuk pondasi
– Perletakan
– Dimensi pondasi
– Jenis pondasi yang digunakan
– Bahan bangunan yang digunakan
GAMBAR RENCANA PONDASI FOOTPLATE
GAMBAR RENCANA PONDASI TIANG PANCANG
GAMBAR RENCANA MEKANIKAL DAN ELEKTRIKAL
• Rencana Mekanikal dan Elektrikal adalah gambar rencana ME yang termuat dalam denah bangunan
• Terdiri dari :
– Rencana plumbing (perpipaan)
• Jaringan Air Limbah Rumah Tangga
• Jaringan Air Limbah Khusus
• Jaringan Air Bersih
• Jaringan Air Untuk Pemadam Kebakaran
– Rencana Jaringan Lampu
– Rencana HVAC
– Rnecana Jaringan Data
– Rencana Jaringan Telepon
– Rencana Jaringan CCTV
RENCANA JARINGAN AIR KOTOR
RENCANA JARINGAN AIR BERSIH
RENCANA JARINGAN PEMADAM KEBAKARAN
RENCANA JARINGAN LISTRIK
RENCANA JARINGAN CCTV
RENCANA TATA RUANG LUAR
KEPENTINGAN UNTUK KENYAMANAN PERGERAKAN :
- PEJALAN KAKI
- KENDARAAN
EKOLOGI :
- PENYERAPAN AIR HUJAN
- TANAMAN UNTUK MENGHASILKAN O2 DAN MENYERAP CO2
- PERGERAKAN UDARA SITTING GROUP (RELAKSASI)
ESTETIKA LINGKUNGAN : WARNA TANAMAN
RENCANA TATA RUANG DALAM
• Perencanaan tata ruang dalam atau desain interior adalah Ilmu yang mempelajari perancangan suatu karya seni yang ada di dalam suatu bangunan gedung dan digunakan untuk memenuhi kebutuhan fungsi dan estetika.
Pekerjaan desain interior dibagi menjadi 3 kelompok, yaitu:
• Perancangan interior tetap, perancangan desain interior mulai dari merencanakan denah existing bangunan gedung, lay-out, floor plan, ceiling plan, potongan, aksonometri, detail, perspektif, maket, animasi, dan teknis presentasi lainnya.
• Perancangan interior bergerak (moveable), perancangan desain interior yang bersifat mikro, misalkan pembuatan desain furniture, desain produk, desain landscape interior, handycraft, dll.
• Perancangan dekoratif, perancangan yang bersifat menghias, misalkan mendesain hiasan pesta pernikahan, mendesain pesta ulang tahun, dll.
PERHITUNGAN DAN SISTEM
· Perhitungan : untuk mengukur tingkat kebutuhan :
- Struktur (beban mati, bebab hidup dll)
- Mekanikal (air bersih/minum, limbah)
- Elektrikal (internet, listrik, AC, Lampu)
· Sistem
– Sistem Plumbing
– Sistem Pemadam Kebakaran (Fire Fighting)
– Sistem transfortasi vertikal (lift)
– Sistem Elektrikal
– Sistem Penangkal petir
– Sistem Fire Alarm (Fire Protection)
– Sistem telepon
– Sistem tata suara (sound
system)
– Sistem data
– Sistem CCTV
– Sistem MATV
SPESIFIKASI TEKNIS
• Kejelasan tentang jenis alat yang digunakan sesuai dengan mutu dan kualitas yang diharapkan
• Kejelasan tentang ukuran tertentu agar sesuai dengan yang diharapkan
• Tidak terkait dengan merek tertentu, tetapi kesetaraan terhadap kualitas.
• Sebagai dasar untuk perhitungan biaya secara rinci.
· Spesifikasi Arsitektur
- Warna dinding (cat)
- Kaca, kayu
· Spesifikasi Stuktur
- Campuran perekat utk pondasi, dinding
- Bahan untuk struktur (beton, kayu, baja, aluminium)
- Perlengkapan lain seperti baut, paku dsb
· Spesifikasi Elektrikal
- Kabel dan peralatan penunjang
- Klem
- Lampu, penangkal petir dll
· pesifikasi Mekanikal
- Pipa dan jaringan AC
- Jenis AC yang digunakan
-
• Spesifikasi Bahan bangunan
– peralatan lavatory
PERKIRAAN BIAYA PER KOMPONEN
Penghitungan anggaran biaya dibuat berdasarkan 5 hal pokok, yaitu:
• Taksiran biaya bahan-bahan. Harga bahan-bahan yang dipakai biasanya harga bahan-bahan di tempat pekerjaan, jadi sudah termasuk biaya transportasi atau angkutan, biaya bongkar muat.
• Taksiran biaya pekerja. Biaya pekerja sangat dipengaruhi oleh: panjangnya jam kerja, keadaan tempat pekerjaan, ketrampilan dan keahlian pekerja yang bersangkutan terutama dalam hal upah pekerja.
• Taksiran biaya peralatan. Biaya peralatan yang diperlukan untuk suatu jenis konstruksi haruslah termasuk didalamnya biaya pembuatan bangunan-bangunan sementara (bedeng), mesin- mesin, dan alat-alat tangan (tools).
• Taksiran biaya tak terduga atau overhead cost. Biaya tak terduga biasanya dibagi menjadi dua jenis, yaitu: biaya tak terduga umum dan biaya tak terduga proyek.
• Taksiran keuntungan atau profit. Biaya keuntungan untuk pemborong atau kontraktor dinyatakan dengan prosentase dari jumlah biaya total yang berkisar antara 8-15%.
Komponen Biaya
• Struktur : atap, struktur, pondasi
• Elektrikal : lampu, AC, telepon, penagkal petir dll
• Mekanikal : pipa, limbah, menara air
• Arsitektur : ornamen, pintu, plafon dll.
Tahap rencana detail menjabarkan seluruh perencanaan termasuk rancangan elemen bangunan terkecil secara sistematis dan berurutan. Perancangan dan analisis yang disajikan meliputi seluruh segi struktur bangunan dan dokumen pendukung lainnya.
Laporan akhir tahap perencanaan, meliputi:
1. Lingkup Kegiatan
2. Metodologi Pelaksanaan
3. Identifikasi Permasalahan
4. Pengolahan Data hasil Analisa
5. Perencanaan Program
6. Acuan Pelaksanaan
7. Rencana Kerja
8. Organisasi Pelaksanaan Pekerjaan
Lampiran Laporan Akhir Perencanaan adalah
1. laporan arsitektur;
2. laporan rencana struktur termasuk laporan penyelidikan tanah (Soil Test)
3. laporan rencana mekanikal dan elektrikal;
4. laporan rencana sistem IT (Informasi & Teknologi)
5. laporan tata lingkungan (landscape)
DOKUMEN PELAKSANAAN KONSTRUKSI :
1. GAMBAR RENCANA TEKNIS
2. GAMBAR DETAIL PELAKSANAAN
3. PERHITUNGAN STRUKTUR
4. RENCANA KERJA DAN SYARAT
5. BOQ & RAB
6. LAPORAN PERENCANAAN
7. JAMINAN ATAS KEGAGALAN BANGUNAN
PENJELASAN & EVALUASI PENGADAAN :
1. PENYUSUNAN DOKUMEN LELANG
2. PENYUSUNAN JADWAL LELANG
3. PENJELASAN BERITA ACARA & EVALUASI
4. PENYUSUNAN KEMBALI DOKUMEN LELANG
PENGAWASAN BERKALA :
Kegiatan pengawasan berkala dilakukan oleh pemilik atau dengan menggunakan penyedia jasa pengawasan Pelaksanaan konstruksi yang mempunyai sertifikasi keahlian sesuai dengan peraturan perundang-undangan.
1. Pemeriksaan Kesesuaian Pelaksanaan Pekerjaan
2. Penyesuaian gambar dan spesifikasi teknis
3. Rekomendasi terhadap persoalan yang timbul
4. Rekomendasi penggunaan bahan
5. Laporan Akhir Pengawasan Berkala




















Komentar
Posting Komentar